Page 133 - Andersen Architectural Collection E-Series 2017-18 Product Guide for Professionals
P. 133
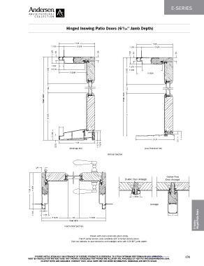
Hinged Inswing Patio Doors (6 / 16" Jamb Depth)
9
(Drainage Sill) (Low Threshold Sill)
Vertical Section
Center Post
Double Door Astragal Door Astragal
Astragal
Hinged Patio Doors
E-Series
Horizontal Section
Shown with ovolo (colonial) glass stops.
French panel shown, also available with a contemporary panel.
Visit our website to see transoms and sidelight units with 6-9 / 16" jamb depth.
PROPER INSTALLATION AND MAINTENANCE OF E-SERIES PRODUCTS IS ESSENTIAL TO ATTAIN OPTIMUM PERFORMANCE AND OPERATION. 131
WRITTEN INSTALLATION INSTRUCTIONS THAT PROVIDE GUIDELINES FOR PROPER INSTALLATION ARE AVAILABLE BY VISITING ANDERSENWINDOWS.COM.
CUSTOM SIZES ARE AVAILABLE. CONTACT YOUR LOCAL SUPPLIER FOR MORE INFORMATION. DRAWINGS ARE NOT TO SCALE.

