Page 145 - Andersen Architectural Collection A-Series 2018-19 Product Guide for Professionals
P. 145
A-SERIES
9
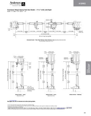
Frenchwood Hinged Inswing Patio Door Details — 4 /16" (116) Jamb Depth
®
1
Scale 1 ⁄ 2" (38) = 1'-0" (305) — 1:8
4 9 ⁄16" (116) Jamb Depth
1 5 ⁄16"
(33)
5 5 ⁄8" (143) Unobstr. 5 1 ⁄8" (130) 5 1 ⁄8" (130) Unobstr. 5 1 ⁄8" (130) 5 1 ⁄8" (130) Unobstr. 5 5 ⁄8" (143) Andersen®
Glass Glass Glass Exterior Trim
3 ⁄8" Unit Dimension Width 3 ⁄8"
(10) (10)
Minimum Rough Opening Width
Horizontal Section − Three-Panel Stationary-Active-Stationary (SASL/SASR/ASSL/ASSR/SSAL/SSAR)
Top-Hung Gliding or Gliding Insect Screen
1 5 ⁄16" 4 9 ⁄16" (116) 1 5 ⁄16" 4 9 ⁄16" (116)
(33) Jamb Depth (33) Jamb Depth
1 5 ⁄16" 4 9 ⁄16" (116)
(33) Jamb Depth Andersen® Andersen®
Exterior Trim Exterior Trim
2 1 ⁄16"
(52)
5 5 ⁄8" (143) 3 9 ⁄16" 5- 5 ⁄8" (143) 5 5 ⁄8" (143)
(90) A-Series Frenchwood ® Hinged Inswing Patio Doors
Minimum Rough Opening Height Unit Dimension Height Unobstr. Glass Minimum Rough Opening Height Unit Dimension Height Unobstr. Glass Minimum Rough Opening Height Unit Dimension Height Unobstr. Glass
10 1 ⁄ 2" (267) 10 1 ⁄ 2" (267) 10- 1 ⁄ 2" (267)
2 1 ⁄4" (57)
Dimension from top
of sill to subfloor will
vary based on thickness
of sill flashing.
Vertical Section — Active Vertical Section — Active Vertical Section — Stationary
Gliding Insect Screen Hinged Insect Screen
See pages 156-159 for horizontal and vertical joining details.
9
• 4 / 16 " (116) jamb depth measurement is from back side of installation flange.
• Light-colored areas are parts included with door. Dark-colored areas are additional Andersen ® parts required to complete door assembly as shown.
• Dimensions in parentheses are in millimeters.
• Rough openings may need to be increased to allow for use of building wraps, flashing, sill panning, brackets, fasteners or other items. See installation information on pages 236-237.
• Details are for illustration only and are not intended to represent product installation methods or materials. Refer to product installation guides at andersenwindows.com.
143

